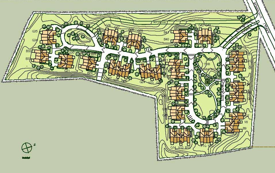
Pin Oaks at Norfolk, MA
43 Townhomes, Active adult community, 3500-4500 s.f., 2 story with basements.